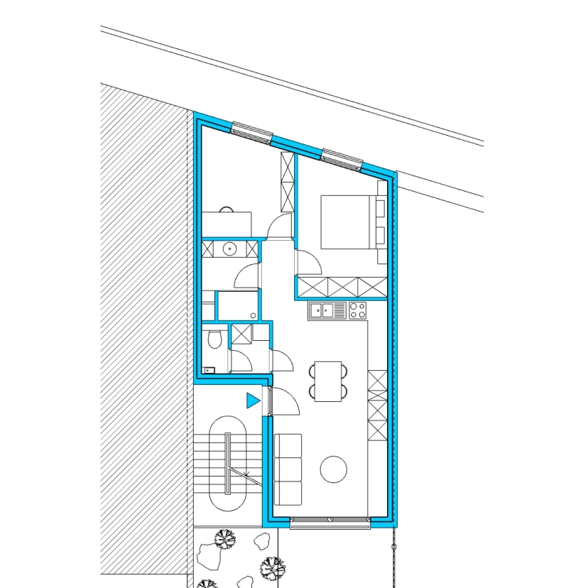
Après l’extension d’une maison de maître (180HER), une dent creuse à l’arrière de la parcelle est comblée par une nouvelle construction.

Ce nouveau volume change profondément la physionomie du bien et fait l'objet d'une attention urbanistique particulière sur les enjeux de densification, rendus de plus en plus prégnants dans le quartier de Coronmeuse avec la proximité du tram et du nouvel écoquartier.